Skip to main content

File #: 26-138    Version: 1
Type: Introductory Ordinance Status: Agenda Ready
File created: 1/8/2026 In control: City Council
On agenda: 2/2/2026 Final action:
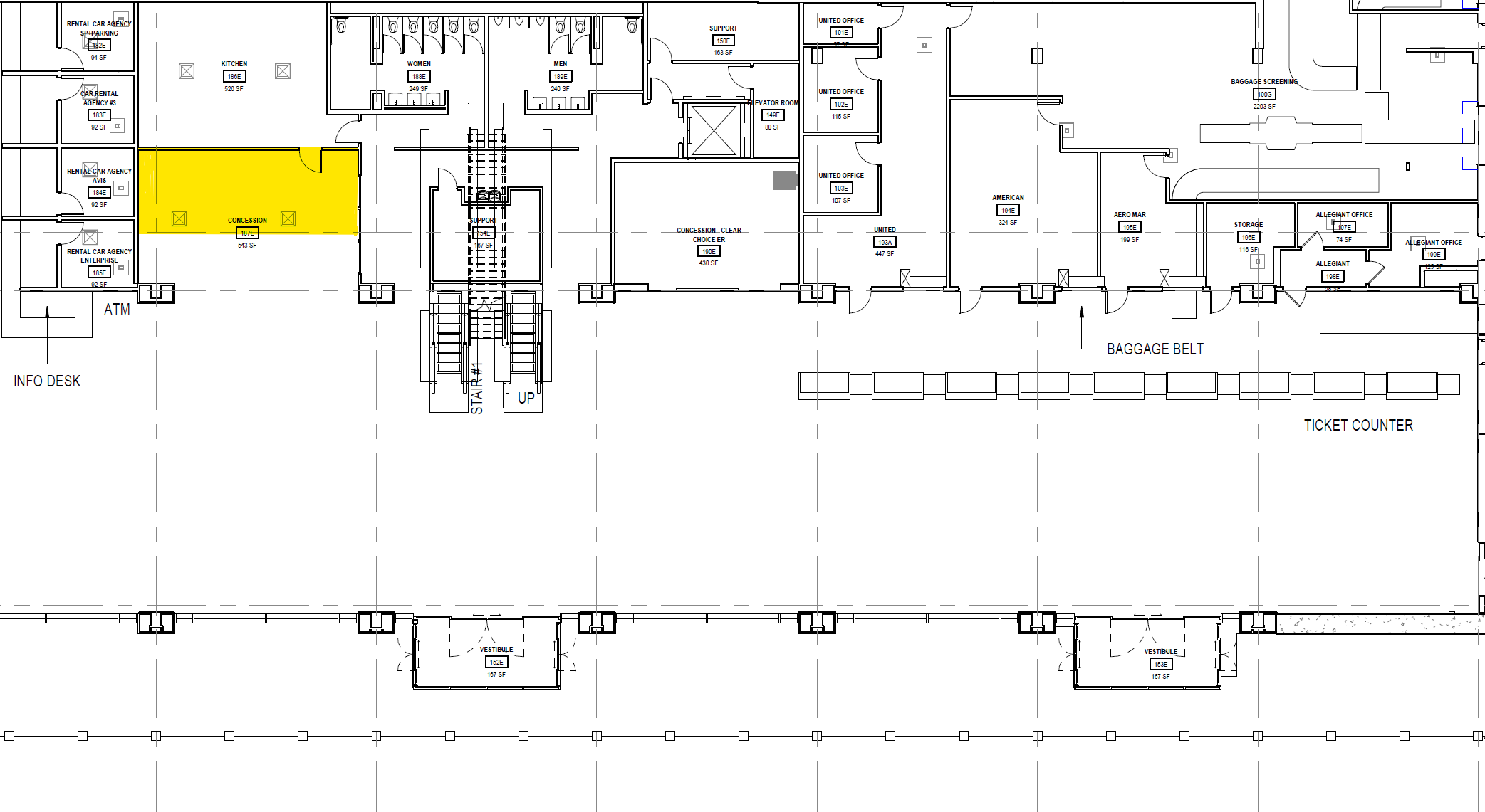
Title: Authorizing the City Manager to execute a Food Service Agreement between the Laredo International Airport and Chick-Fil-A Marketplace Bob Bullock located at 5210 Bob Bullock Loop at the Laredo International Passenger Terminal in a space consisting of 200 sqft, described as Suite No. 101 on the first floor of the terminal building, as depicted in Exhibit B, for the purposes of providing prepared lunch food items and non-branded drinks, further described in Exhibit A, from 9:00 AM to 7:30 PM, Monday thru Saturday. The lease term shall be for one (1) year with one (1) option to renew and base rent shall consist of three percent (3%) of the concessionaire's monthly gross sales; and providing for an effective date.
Attachments: 1. Exhibit B, 2. ADP Food Service Agreeement Laredo International Airport 1.8.pdf, 3. Chick-Fil-A Ordinance 2026, 4. BreakfastMenu_2026, 5. LunchMenu_2026
Related files: 2026-O-28
Date Ver.Action ByActionResultAction DetailsMeeting DetailsVideo
No records to display.

SUBJECT
title
Authorizing the City Manager to execute a Food Service Agreement between the Laredo International Airport and Chick-Fil-A Marketplace Bob Bullock located at 5210 Bob Bullock Loop at the Laredo International Passenger Terminal in a space consisting of 200 sqft, described as Suite No. 101 on the first floor of the terminal building, as depicted in Exhibit B, for the purposes of providing prepared lunch food items and non-branded drinks, further described in Exhibit A, from 9:00 AM to 7:30 PM, Monday thru Saturday. The lease term shall be for one (1) year with one (1) option to renew and base rent shall consist of three percent (3%) of the concessionaire's monthly gross sales; and providing for an effective date.

body
VIVA LAREDO PLAN ALIGNMENT
Alignment Rating: Strong
Supporting goal(s)/policy(ies):
* Goal 10.2 Enhance visitor experience and promote Laredo as a destination.
* Goal 11.3 Support infrastructure that enhances trade, travel and mobility.
* Policy 9.4.3 Promote businesses and services that enhance the user experience in activity centers.
* Goal 9.1: Increase the capacity for investments and job growth.

Summary of alignment:
This agreement strongly aligns with the Comprehensive Plan as it enhances passenger amenities, and supports economic activity within the airport.

PREVIOUS COUNCIL ACTION
March 2, 2022- Ordinance No. 2022-O-079

BACKGROUND
The Laredo International Airport wishes to continue providing food concessions on the first floor of the passenger terminal.

A food and service agreement between the Laredo International Airport and Chick-Fil-A Marketplace Bob Bullock has been in effect since 2022.

Chick-Fil-A Marketplace Bob Bullock has agreed to once again enter into a food lease agreement with the Airport to provide prepared lunch food items and non-branded drinks, which are described in Exhibit A, from 9:00 AM to 7:30 PM Monday thru Saturday for constituents. Chick-Fil-A will be located in Suite No. 101 on the first f...

Click here for full text